LOKALNO
Občina Šalovci bo pridobila nov prostor za skupnost in povezovanje
Občina Šalovci je bila uspešna na razpisu Ministrstva za kohezijo in regionalni razvoj, kjer si je zagotovila 100-odstotno sofinanciranje za projekt "Revitalizacija mansarde za močnejšo skupnost občine Šalovci". Projekt, vreden 427.157,80 evra, predstavlja pomemben korak k razvoju lokalne infrastrukture in skupnostnega življenja.
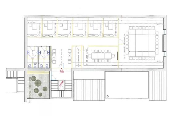
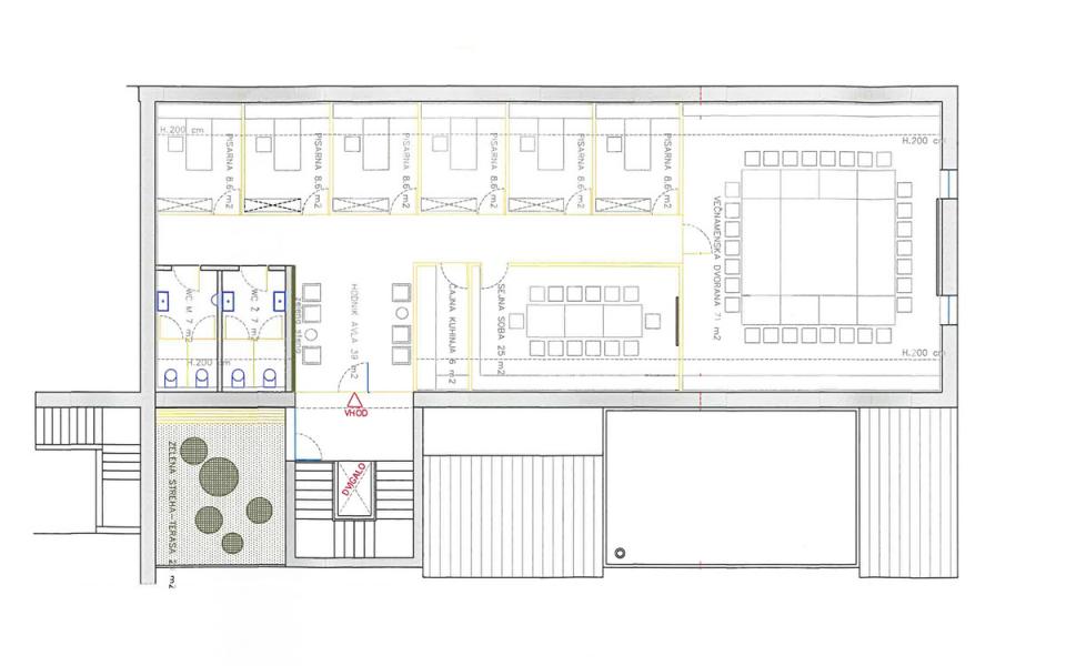
Središče dogajanja bo trenutno neizkoriščen mansardni prostor v občinskem središču, ki ga bodo v prihodnjih mesecih popolnoma prenovili in sodobno preuredili. Po prenovi bo na voljo 206,60 m² uporabnih površin, namenjenih povezovanju, druženju in izvajanju različnih aktivnosti za prebivalce občine.

Prostor bo služil kot stičišče za delovanje društev, organizacij ter pobud iz lokalnega in širšega okolja. V njem bodo urejeni pisarniški prostori, kot tudi prostori za izvedbo delavnic, izobraževalnih programov, kulturnih dogodkov in podjetniških iniciativ. S tem se bo izboljšala dostopnost storitev in povečala kakovost življenja občanov.
Poseben poudarek bo namenjen trajnostnim rešitvam. Obnovitvena dela bodo vključevala elemente modre in zelene infrastrukture, kar pomeni okolju prijazno prenovo z mislijo na prihodnost. Zaključek projekta je predviden za oktober 2025.
FOTO: Občina Šalovci
Fotogalerija
Komentarji
Opozorilo
Slovenski knjižni jezik je samo naš, zato ga cenimo. Na Pomurec.com želimo vzpodbujati njegovo rabo, zato vas naprošamo, da vaš komentar podate v slovenskem knjižnem jeziku. Pri tem sledite tudi načelom kakovostnega komentiranja. Najboljše komentarje bomo ob koncu leta nagradili.
Komentarji ne odražajo stališča uredniške politike Pomurec.com. Pozivamo vas k strpni in argumentirani razpravi brez sovražnega govora.
Po Kazenskem zakoniku KZ-1 je posameznik kazensko odgovoren za javno spodbujanje sovraštva, nasilja ali nestrpnosti ter za grožnjo, da bo napadel življenje ali telo druge osebe. Pomurec.com bo v primeru obrazložene zahteve državnih organov, ki temelji na zakonski podlagi, podatke o komentatorjih, s katerimi razpolagamo, tem tudi posredoval.

